![]() |
![]() |
![]() |
濃縮機主要用于濕式選礦作業中精礦、中礦以及尾礦漿的脫水。廣泛用于冶金、化工、煤炭、非金屬選礦、環保等行業。 高效濃縮機實際上并不是單純的沉降設備,而是結合泥漿層過濾特性的一種新型脫水設備。濃縮機可應用于冶金、礦山、煤炭、化工、建材、環保等部門礦泥、廢水、廢渣的處理,對提高回水利用率和底流輸送濃度以及保護環境具有重要意義。

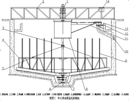
濃縮機一般主要由濃縮池、粑架、傳動裝置、粑架提升裝置、給料裝置、卸料裝置和信號安全裝置等組成。工作的主要特點是在待濃縮的礦漿中添加一定量的絮凝劑,使礦漿中的礦粒形成絮團,加快其沉降速度,進而達到提高濃縮效率的目的。

(1)添加絮凝劑增大沉降固體顆粒的粒徑,從而加快沉降速度;
(2)裝設傾斜板縮短礦粒沉降距離,增加沉降面積;
(3)發揮泥漿沉積濃相層的絮凝、過濾、壓縮和提高處理量的作用;
(4)配備有完整的自控設施.
濃縮機分為中心傳動式濃縮機,周邊傳動式濃縮機,高效濃縮機,污泥濃縮機,間歇式濃縮機,豎流式和輻流式連續式濃縮機。本公司生產的濃縮機主要有NZ、NX、NZY型中心傳動式和NG、NT、NJ、NTJ型周邊傳動式兩大系列。

版權所有?:浙江同力重型機械制造有限公司 浙ICP備11047279號-2

浙公網安備 33048302000399號